113 mq
3
1
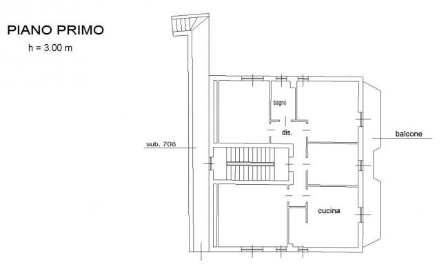
Gazzaniga, nella splendida e panoramica località di Rova, con ogni comodità e servizio nelle immediate vicinanze, proponiamo ampio quadrilocale al primo piano di una palazzina con sole due unità abitative. L'immobile è così composto: ingresso su ampio disimpegno, cucina abitabile con accesso al balcone, soggiorno, tre spaziose camere da letto ed un comodo bagno finestrato.
Completano la proprietà un ripostiglio ed un box singolo al piano terra.
Finiture dell'epoca nella zona notte, infissi in pvc doppio vetro nella zona giorno.
L'indirizzo dell'immobile è indicativo.

113 mq
3
1