500 mq
4
5
In zona collinare e immersa nel verde, ma allo stesso tempo vicina ai principali servizi e arterie stradali, proponiamo splendida villa unifamiliare così composta:
-p. sottostrada: taverna abitabile con soggiorno ed angolo cottura, bagno con doccia, ripostiglio, locale caldaia, zona lavanderia, cantina e locale studio;
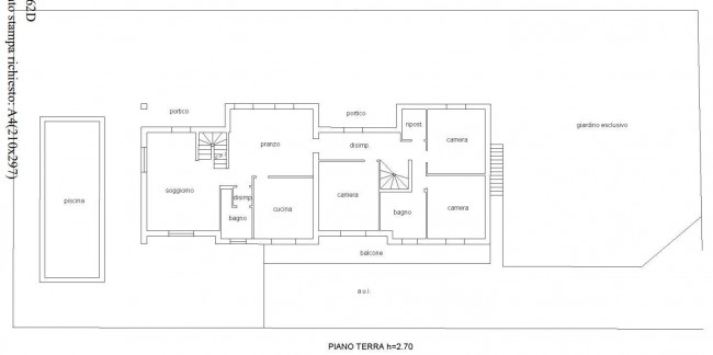
-p. terra: ingresso con ampio soggiorno, cucina abitabile con accesso all'esterno, disimpegno notte, tre camere da letto matrimoniali, due ampi bagni con doccia e vasca idromassaggio e locale ripostiglio;
-p. primo: due ampie camere da letto entrambe con bagno en suite e un ripostiglio.
Completano la proprietà due box doppi e un ampio giardino privato con piscina interrata.
Finiture: ante e serramenti in legno con doppio vetro, zanzariere su tutti gli infissi, videocitofono, portoncino blindato, impianto fotovoltaico da 6 kw, impianto solare termico, aria condizionata, impianto d'allarme volumetrico e perimetrale, cappotto, stufa a pellet, travi a vista, basculante elettrica.
L'indirizzo dell'immobile è indicativo.

500 mq
4
5