240 mq
2
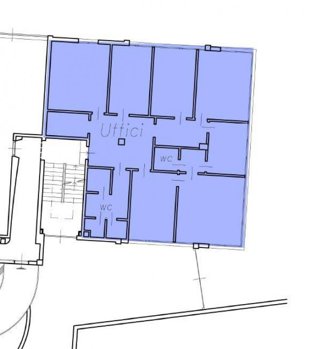
Zona centrale, a ridosso dei principali servizi e comodità, proponiamo in Affitto luminosi locali su unico piano, liberi su tre lati, ideali per attività di ufficio.
La metratura totale è suddivisa in sette moduli più due bagni e un locale tecnico.
Completano la proprietà 5 posti auto coperti al piano seminterrato.
Possibilità di Affitto di ulteriori due piani (primo e secondo) con annessi posti auto riservati.
Finiture: serramenti in alluminio con doppio vetro, pavimenti rivestiti in moquette e ceramica nei bagni, bagno disabili.
Prezzo mensile indicato oltre iva.
A garanzia la proprietà richiede al conduttore una fideiussione bancaria corrispondente al canone annuale.
L'indirizzo dell'immobile è indicativo.

240 mq
2